Premierklasse
Er zit iets majestueus in dit schitterende gebouw. De centrale structuur torent overal bovenuit, bijna alsof ze zweeft. Dit geeft de architectuur een gevoel van lichtheid en harmonie, terwijl het ook de praktische elementen onthult van de overdekte entree en het terras.
*Foto toont woning met individuele aanpassingen.

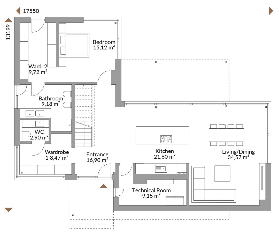
Plattegronden
Complete plattegronden van alle verdiepingen met oppervlaktes

Vrienden en familie vinden het een prachtig huis. We zijn heel dankbaar dat we zo’n mooi huis hebben om te delen met onze kleinkinderen en familie. Ja, dit is zonder twijfel ons huis voor altijd.