Zo eenvoudig, zo mooi
De Vision 227 is een woning als geen ander. Ondanks de traditionele vorm met een zadeldak oogt het alsof ze uit één mal is gegoten: geen dakoverstek, geen uitstekende elementen. In plaats daarvan zijn er verrassende details en architectonische accenten die meteen de aandacht trekken.
*Foto toont woning met individuele aanpassingen.

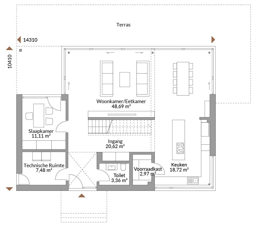
Plattegronden
Complete plattegronden van alle verdiepingen met oppervlaktes






Vrienden en familie vinden het een prachtig huis. We zijn heel dankbaar dat we zo’n mooi huis hebben om te delen met onze kleinkinderen en familie. Ja, dit is zonder twijfel ons huis voor altijd.